< 1 · 2 · 3 · 4 · 5 · 6 · 7 · 8 · 9 · 10 · 11 · 12 >
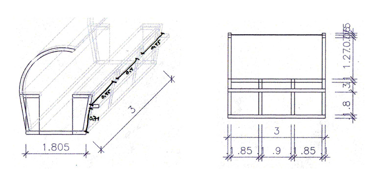
Dimensioning
Furniture Design: Museum counter · 1st semester (2005 / 2006)