< 1 >
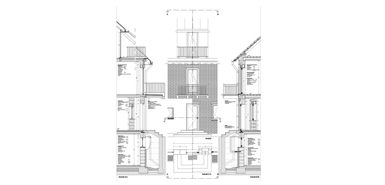
Sectional drawing of a single occupancy house
Structural Design: Facade Sectional Drawing · 3rd semester (2006/2007)